Основным принципом, по которому создаются проекты ландшафта, является баланс между эстетической и практической функциями создаваемой территории. Помимо этого, ландшафтные проекты позволяют организовывать особенности местности таким образом, чтобы влиять на восприятие элементов ландшафта человеком. Открывающийся пейзаж делится на несколько слоёв при помощи приёмов ландшафтного дизайна. Также с помощью этих приёмов оказывается воздействие на поведение человека в саду, то есть намеренно привлекается взгляд к каким-либо пейзажам, элементам оформления, чтобы подтолкнуть к движению в этом направлении. Примером таких приёмов могут быть арки или древесно-кустарниковые кулисы.
Стадии оформления ландшафтного проекта
Для удобства сам процесс создания ландшафтного проекта можно разделить на две стадии: эскизное и рабочее ландшафтное проектирование.
Любой ландшафтный проект начинается с эскиза. На этом этапе закладываются общие принципы, по которым будет меняться обрабатываемая территория, конкретизируется будущий стиль участка, происходит зонирование территории, намечается система дорожек или тропинок, определяются места размещения водоёмов, растительных насаждений и прочих основных элементов. Важным инструментом на этом этапе является трёхмерное моделирование вариантов проекта. Это может быть как набросок от руки, так и компьютерная модель. Такое изображение позволяет более точно понять замысел дизайнера и устранить практически все возможные противоречия между видением заказчика и решениями, заложенными в ландшафтный проект.
После того как эскиз закончен и утверждён заказчиком, происходит создание рабочих ландшафтных проектов. На них уже подробно прорабатываются схемы размещения осветительных конструкций, посадки деревьев, дренажа, планы цветников и прочие рабочие моменты, необходимые для того, чтобы при осуществлении проекта не потерялась изначальная концепция.
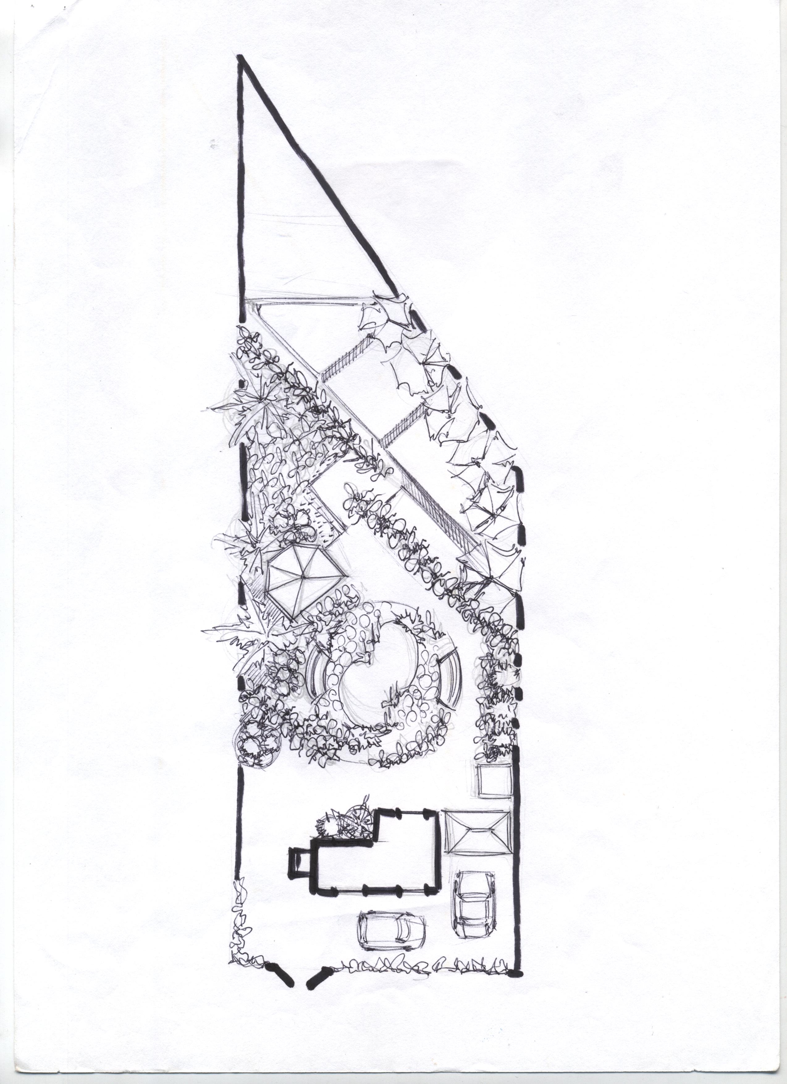
Основные чертежи ландшафтного проекта
- Генеральный план — предназначен для наглядного представления общей картины будущего ландшафта, разбивки на зоны и общего стилевого решения.
- Разбивочный чертёж — содержит в себе все размерные характеристики будущих элементов проекта.
- Дендроплан — включает информацию о сортах, видах, количестве и местоположении планируемых для высадки растений.
- Посадочный чертёж — наглядное изображение будущих зелёных насаждений с указанием расстояний до посадочных ям.
- Схема размещения осветительных элементов — предназначена для отображения источников света на участке.
- Чертёж баланса территории — содержит информацию о соотношении различных типов поверхности.

